電話:021-59965667 59988753
傳真:021-56467791
郵箱:shzgv@zhengvalve.com
地址:上海市崇明區猛將廟南所(合作公路1118號)
氣動V型球閥用途與特點
A、用途 是一種直角回轉結構,它與閥門定位器配套使用,可實現比例調節; V型閥芯最適用于各種調節場合,具有額定流量系數大,可調比大,密封效果好,調節性能零敏,體積小,可豎臥安裝。適用于控制氣體、蒸汽、液體等介質。
B、特點:是一種直角回轉結構,由V型閥體、氣動執行機構、定位器及其他附件組成;有一個近似等百比的固有流量特性;采用雙軸承結構,啟動扭矩小,具有極好的靈敏度和感應速度;超強的剪切能力。
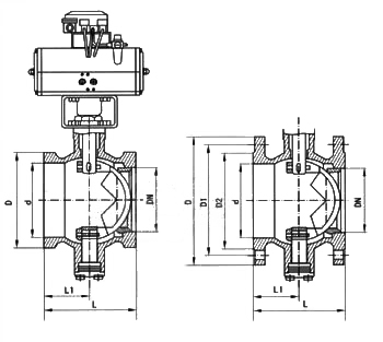
氣動V型球閥結構圖片


C、氣動活塞執行機構采用壓縮空氣作動力源,通過活塞的運動帶動曲臂進行90度回轉,達到使閥門自動啟閉。它的組成部分為:調節螺栓、執行機構箱體、曲臂、氣缸體、氣缸軸、活塞、連桿、萬向軸。
D、氣動調節閥的工作原理:氣動調節閥由執行機構和調節機構組成。執行機構是調節閥的推力部件,它按控制信號壓力的大小產生相應的推力,推動調節機構動作。閥體是氣動調節閥的調節部件,它直接與調節介質接觸,調節該流體的流量。
如您需了解更多V型球閥產品信息請瀏覽:http://m.cbazwhy.cn/842.html