【電動真空球閥用途】
GUD系列電動真空球閥是在1.3×10-7~6×105Pa的真空系統中用來開啟或隔斷氣流的氣動閥門,廣泛適用各類氣體,液體等正、負壓力管道系統,符合GMP標準。
【電動真空球閥主要性能】
● 漏率: ≤1.3×10-9Pa.M3/S;
● 壓力范圍:1.3×10-7Pa~6×105pa;
● 工作溫度:-30℃~+232℃;
● 工作電壓:220V;
● 工作介質:水、蒸氣、酸、堿;
● 安裝位置:任意;
● 壽命:≥20000次。
原理:采用電動執行器驅動閥桿轉 90º達到開關目的。
【電動真空球閥性能特點】
● 密封結構設計獨特,漏率可達到<1×10-10Pa.M3/S,改變了球閥不能滿足高真空、超高真空的現狀;
● 開關扭矩小,配置電動執行器小,工作穩定、可靠;
● 結構緊湊,重量輕,外形簡潔、美觀;
● 該閥既能適用高真空,又能適用一定的正壓力下使用;
由于球閥全通導,又能達到超高真空要求,所以也能適用于加速器真空系統。
【電動真空球閥性能范圍】
| 壓力等級 |
公稱壓力(PN) |
磅級(Class) |
| 1.6 |
2.5 |
4.0 |
6.4 |
10.0 |
150 |
300 |
400 |
600 |
試驗壓力
|
殼體試驗
|
2.4 |
3.75 |
6.0 |
9.6 |
15.0 |
3.03 |
7.5 |
10.2 |
15.0 |
密封試驗
|
1.76 |
2.75 |
4.4 |
7.04 |
11.0 |
2.2 |
5.5 |
7.48 |
11.0 |
| 適用工況 |
適用介質 |
水、氣體、油品等 |
| 適用溫度 |
-29~≤150℃ |
適用規范
|
設計制造按 |
GB12237-89 |
API 6D |
JP17S-48 |
法蘭尺寸按
|
JB79-59、GB9113 、HG20592-07 |
ANSI B16.5 |
JIS B2212-2214 |
結構長度按
|
GB12221-89 |
ANSI B16.10 |
JIS B2002 |
檢驗試驗按
|
|
JB/T9092-99 |
API 598 |
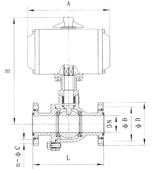
【電動真空球閥結構圖】

【電動真空球閥連接尺寸】
快卸法蘭連接尺寸 (標準:GB4982)
|
型 號 |
DN |
A |
B |
L |
H |
|
GUD-16R |
16 |
30 |
12.2 |
75 |
220 |
|
GUD-20R |
20 |
40 |
26.2 |
90 |
230 |
|
GUD-25R |
25 |
40 |
26.2 |
100 |
240 |
|
GUD-32R |
32 |
55 |
34.2 |
110 |
252 |
|
GUD-40R |
40 |
55 |
41.2 |
120 |
265 |
衛生級法蘭連接尺寸 (標準:ISO-2852)
|
型 號 |
DN |
A |
B |
L |
H |
|
GUD-16R |
16 |
34 |
27.5 |
75 |
220 |
|
GUD-20R |
20 |
50.5 |
43.5 |
90 |
230 |
|
GUD-25R |
25 |
50.5 |
43.5 |
100 |
240 |
|
GUD-32R |
32 |
50.5 |
43.5 |
110 |
252 |
|
GUD-40R |
40 |
50.5 |
43.5 |
120 |
265 |
|
GUD-50R |
50 |
64 |
56.5 |
135 |
285 |
|
GUD-65R |
65 |
77.5 |
70.5 |
150 |
330 |
|
GUD-80R |
80 |
91 |
83.5 |
200 |
390 |
|
GUD-100R |
100 |
119 |
110 |
250 |
440 |
活套法蘭連接尺寸 (標準:GB6070)
|
型 號 |
DN |
A |
B |
n |
c |
L |
H |
|
GUD-16R |
16 |
60 |
45 |
4 |
6.6 |
75 |
220 |
|
GUD-20R |
20 |
65 |
50 |
4 |
6.6 |
90 |
230 |
|
GUD-25R |
25 |
70 |
55 |
4 |
6.6 |
100 |
240 |
|
GUD-32R |
32 |
90 |
70 |
4 |
9 |
110 |
252 |
|
GUD-40R |
40 |
100 |
80 |
4 |
9 |
120 |
265 |
|
GUD-50R |
50 |
110 |
90 |
4 |
9 |
135 |
285 |
|
GUD-65R |
65 |
130 |
110 |
4 |
9 |
150 |
330 |
|
GUD-80R |
80 |
145 |
125 |
8 |
9 |
200 |
390 |
|
GUD-100R |
100 |
165 |
145 |
8 |
9 |
250 |
440 |
訂貨須知:
一、①電動真空球閥產品名稱與型號②電動真空球閥口徑③電動真空球閥是否帶附件以便我們的為您正確選型。
二、若已經由設計單位選定正鋼閥門電動真空球閥型號,請按電動真空球閥型號直接向我司銷售部訂購。
三、當使用的場合非常重要或環境比較復雜時,請您盡量提供設計圖紙和詳細參數,由我們的正鋼閥門專家為您審核把關。